
Linsenhofer-Straße 5+7, Beuren
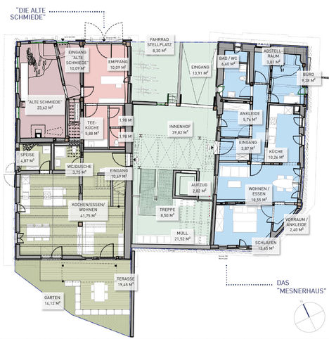
"MESNERHAUS" UND DIE "ALTE SCHMIEDE"
Die beiden Gebäude der Linsenhofer-Straße 5+7 sind zwei gegenüberliegende,
mit einer Scheune verbundene Gebäude in zentraler Ortslage, umgeben von
weiteren ortsbildprägenden, historisch bedeutsamen Gebäuden wie dem Rathaus.
Bekannt in Beuren ist die Linsenhofer-Straße 7 unter dem Namen „Alte Schmiede“.
Das im Jahre 1585 erbaute Haus besitzt noch seine originale Haustüre.
Das Gebäude Linsenhofer-Straße Nr. 5 wurde im Jahre 1561 erbaut
und ist bekannt als das „Mesnerhaus“ von Beuren.
Die die Gebäude verbindende Scheune ist nicht denkmalgeschützt und kann somit
im Zuge der Restaurierungsarbeiten abgerissen werden.
Zukünftig ist eine außenliegende Erschließung über einen Aufzug
sowie ein Treppenhaus angedacht. Diese werden in einem neu zu errichtenden Anbau
untergebracht, welcher sich auf dem heutigen Standort der Scheune befinden wird.
Das "Mesnerhaus":
Im Rahmen der Gesamtrestaurierung des denkmalgeschützten Gebäudes entstehen über die vorhandenen 3 Vollgeschosse, sowie zwei Dachgeschosse, fünf Wohnungen.
Um den Bestand zu schützen und das Prinzip des Hauses sichtbar zu lassen, wird der zweigeschossige Bereich im ehemaligen Ökonomieteil teilweise offenbleiben.
Die Gefache der Fachwerkwände im Ökonomieteil bleiben auch nach der Gesamtrestaurierung von innen größtenteils sichtbar.
Um die historische Bausubstanz der Häuser Linsenhofer-Straße 5 und 7 zu schützen, wurde die vertikale Erschließung außerhalb der Gebäude geplant.
Anstelle der „Alten Scheune“ befindet sich ein neuer, freistehender Treppenturm. Die Scheune wird in diesem Zuge abgebrochen.
Der Aufzugsschacht wird als massive Konstruktion ausgeführt. Die daneben laufende Treppe, als filigrane Stahlkonstruktion geplant, wird teilweise in den Aufzugsschacht eingespannt.
Eine Stegkonstruktion, ebenfalls aus Stahl geplant, ermöglicht die Erschließung in die einzelnen Wohnungen.
Im Außenbereich ist von der Linsenhofer-Straße die alte Scheunenwand mit ihrem Scheunentor zu sehen, welche als einziges Bauteil der „Alten Scheune“ erhalten wird. Diese dient als Abgrenzung zwischen öffentlich und privat
und schafft so einen geschützten Innenhof zwischen den zwei Gebäudekomplexen.
Im Gewölbekeller sind ausschließlich Lagerräume und ein kleiner Technikraum geplant.
Die "Alte Schmiede":
Im Rahmen der Gesamtrestaurierung des denkmalgeschützten Gebäudes wird eine Umnutzung des Gebäudes zu Wohnungen und einem Gewerbeteil im Erdgeschoss entstehen.
Angrenzend zum Gewerbe wird die „Alte Schmiede“ als Ausstellung erhalten und der Öffentlichkeit zugänglich gemacht. Aufgrund der Brandschutzauflagen wird der Ofen allerdings nicht wieder in Betrieb genommen.
Im hinteren Bereich des Gebäudes befindet sich auf der Südseite eine Wohnung, welche sich über das Erdgeschoss und das erste Obergeschoss erstreckt.
Im Obergeschoss und den Dachgeschossen befinden sich zwei weitere Wohnungen.
Im Außenbereich ist auf der Südseite des Grundstückes eine Terrasse geplant, welche der Erdgeschosswohnung zugehörig sein wird.
Erschlossen wird der Gewerbeteil, sowie die „Alte Schmiede“ weiterhin von der Linsenhofer-Straße. Die Wohnungen werden über den neuen Innenhof mit Treppenturm, zwischen der Linsenhofer-Straße 5 und 7 erschlossen.
Die Haustechnik wird im Gewölbekeller untergebracht und soll die Linsenhofer-Straße 7, sowie auch die Linsenhofer-Straße 5 versorgen. Außerdem ist im Keller ein kleiner Lagerraum für den Gewerbebereich vorgesehen.
Ziel ist es, die Originalsubstanz beider Gebäude so weit wie möglich zu erhalten und die
ursprünglichen Raumstrukturen zu bewahren oder wieder herzustellen.
Planunterlagen
Videobericht zur Linsenhofer-Straße
Kamera und Schnitt: Manfred Schäffler - Herzlichen Dank dafür!




















